Thickening
On Air & Atmosphere
Although invisible, air has a method of revealing itself, through thickening, and increasing its density. Resulting in what we measure as humidity, this thickening has become a major factor for comfort within the environment.
Architecture has tried to come up with solutions, trying to control and mitigate moisture within air, within a space. Perhaps the direction is not to gain ultimate control, but to provide room for air to still play and misbehave.
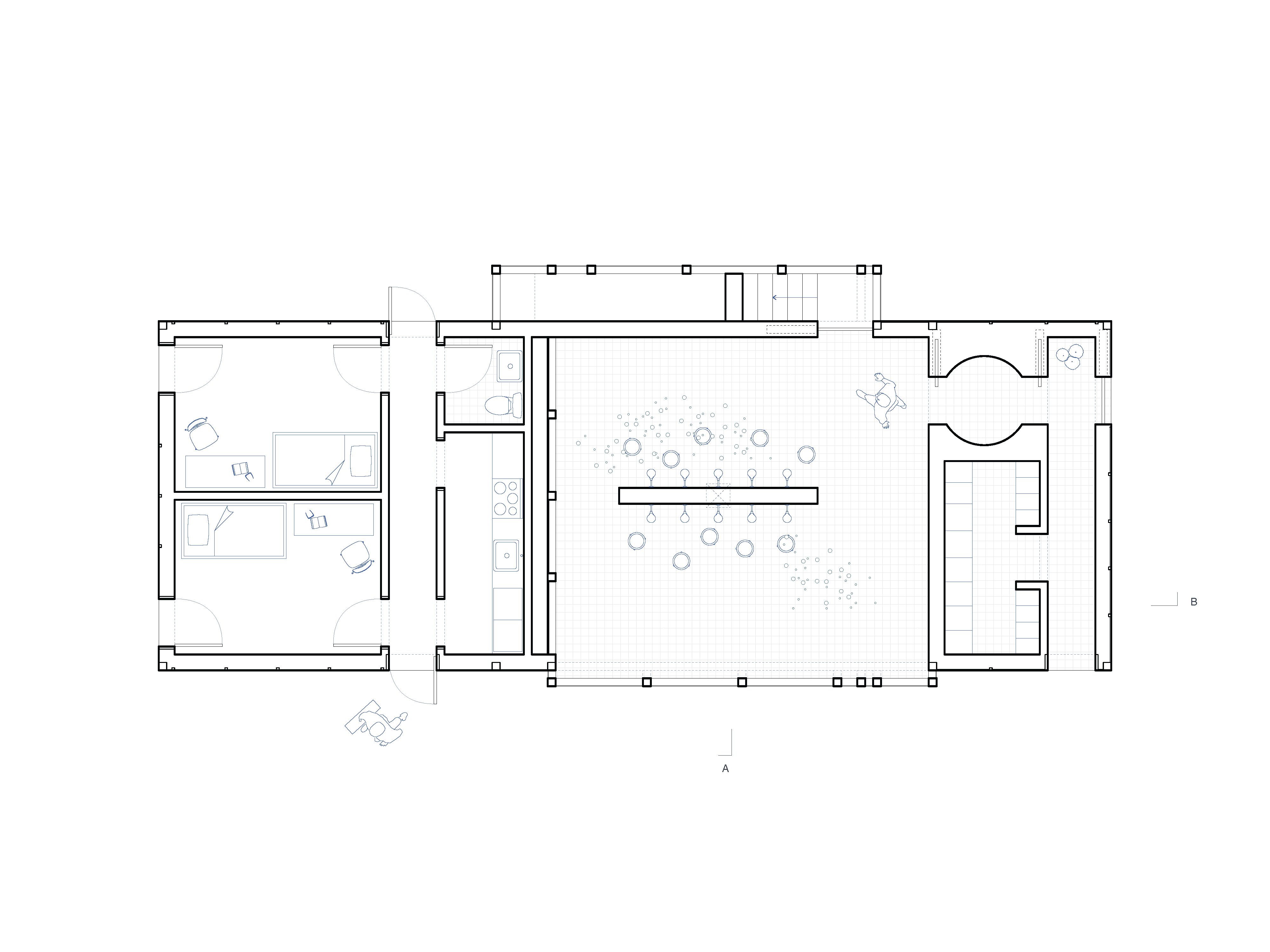
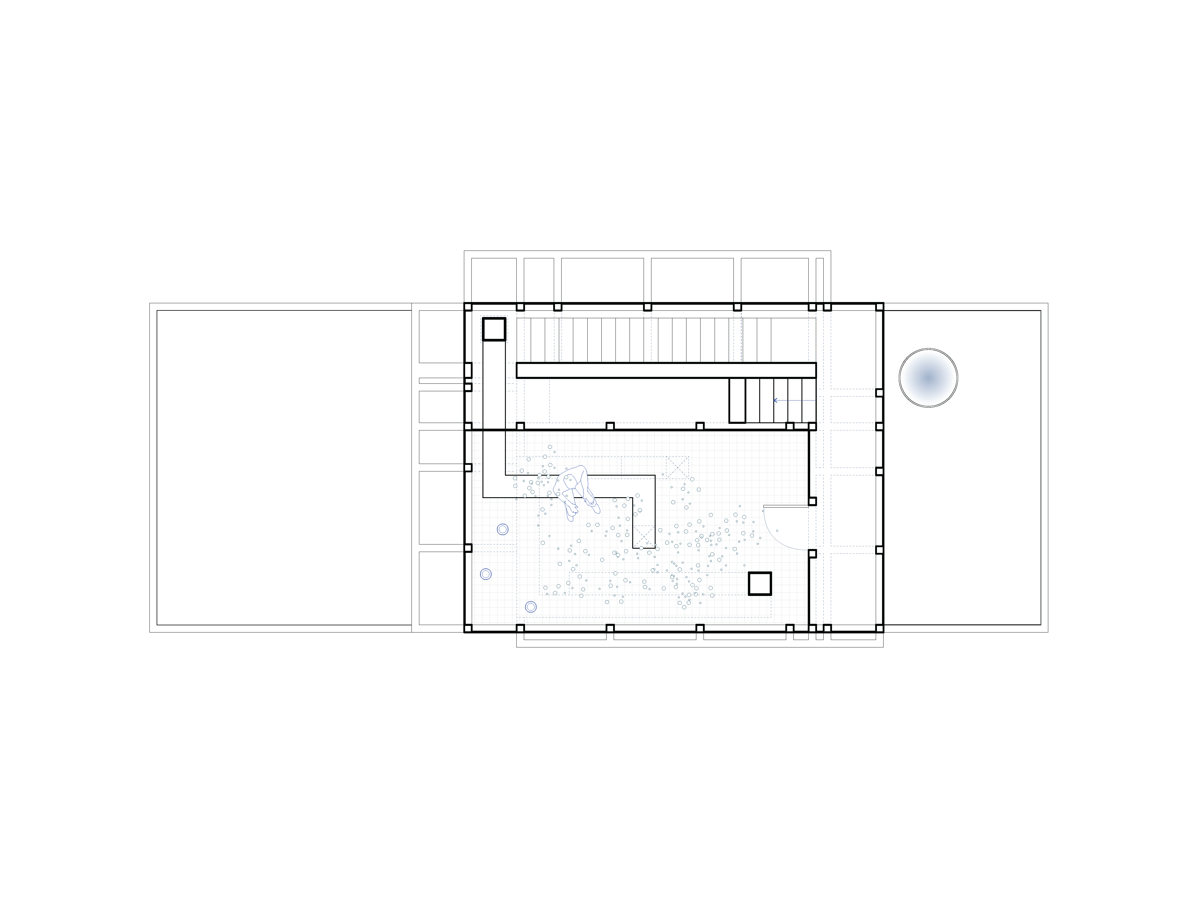
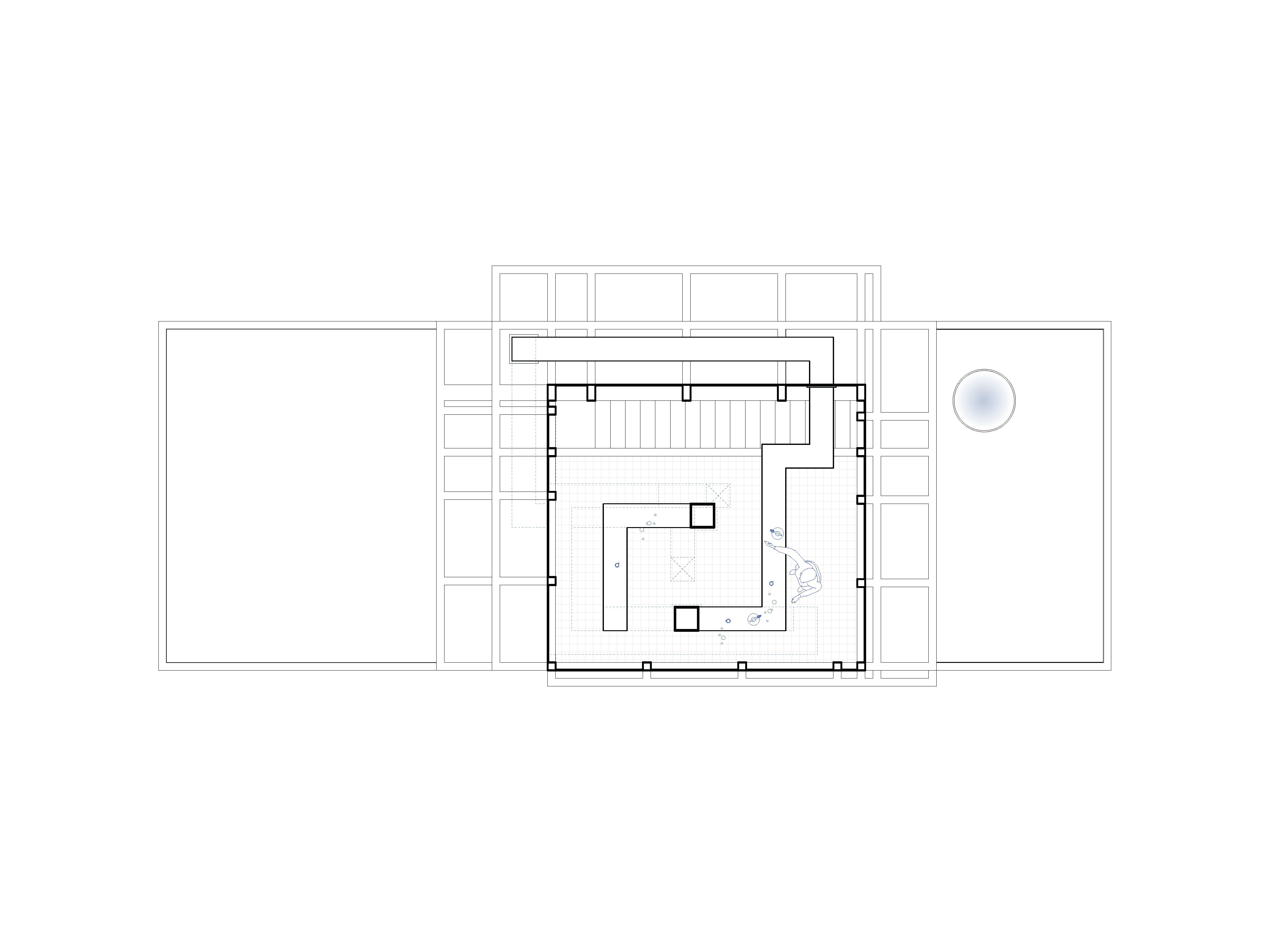
The project builds on the idea of air as a shared resource and proposes a bathhouse, thinking around its processes like cleansing, bathing, and resting. The steam that is produced then becomes a vessel, a ritual, that serves for communal gathering. Specially through a steam vent that spindles and twists within the bathhouse, programming is determined, and warm air harnessed.
Ground Level: Living & Cleansing
2nd Level: Bathing
3rd Level: Steaming
4th Level: Tea House
The bathhouse does not try to gain complete control of steam, as it never will. Instead, it only wants to delay its escape, allowing interaction to occur and held in common.
Although invisible, air has a method of revealing itself, through thickening, and increasing its density. Resulting in what we measure as humidity, this thickening has become a major factor for comfort within the environment.
Architecture has tried to come up with solutions, trying to control and mitigate moisture within air, within a space. Perhaps the direction is not to gain ultimate control, but to provide room for air to still play and misbehave.
The project builds on the idea of air as a shared resource and proposes a bathhouse, thinking around its processes like cleansing, bathing, and resting. The steam that is produced then becomes a vessel, a ritual, that serves for communal gathering. Specially through a steam vent that spindles and twists within the bathhouse, programming is determined, and warm air harnessed.
Ground Level: Living & Cleansing
2nd Level: Bathing
3rd Level: Steaming
4th Level: Tea House
The bathhouse does not try to gain complete control of steam, as it never will. Instead, it only wants to delay its escape, allowing interaction to occur and held in common.
2025
Fog Studies
Steam Vents

Floor Plans
Section A

Section B

Culminated Research & Physical Models